M · 606 427 023 info@lidiaantunez.com
Select Page

Interiorisme de l’Ampliació de l’EDIFICI de Restauració Museo del Prado

Client · Museo del Prado.
Localització
· Retiro – Madrid.

Projecte any 2004.

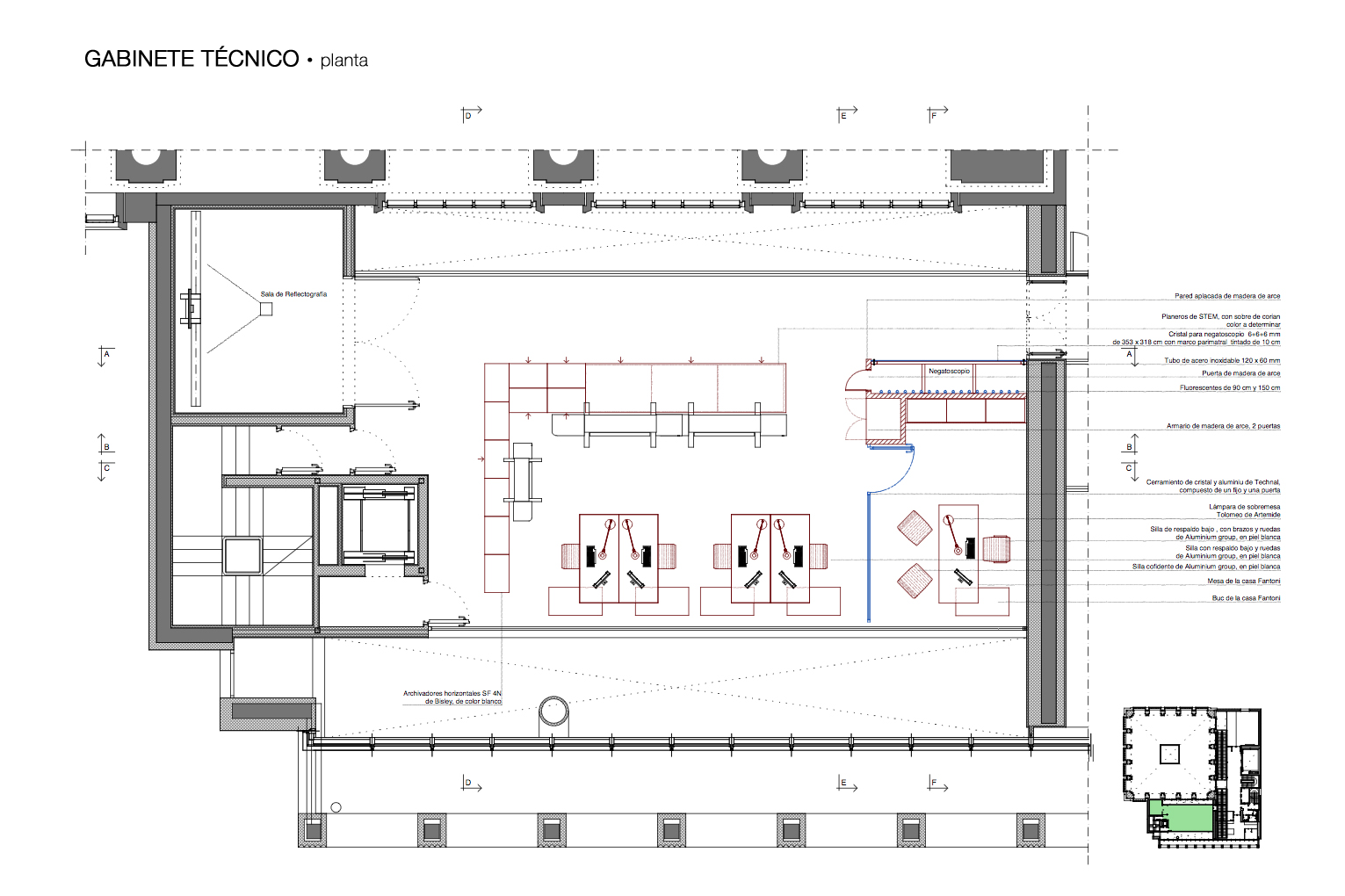
El Museu del Padro ens encarrega a l’empresa STEM (Serveis Tècnics d’Equipaments de Museus) i a Lidia Antúnez Interiorisme el disseny de totes les plantes d’ampliació del Museu El Prado que va portar a terme l’arquitecte Rafael Moneo.

Les plantes de ampliació que allotgen; la restauració de pintura,  taller d’escultura, taller de paper, laboratori de raig X, gabinet tècnic i despatxos.

 

Comparteix aquest projecte: