Espai d’acollida “Pels camins del Pallars”
Client · Consell Comarcal del Pallars Sobirà.
Localització · Sort – Lleida.
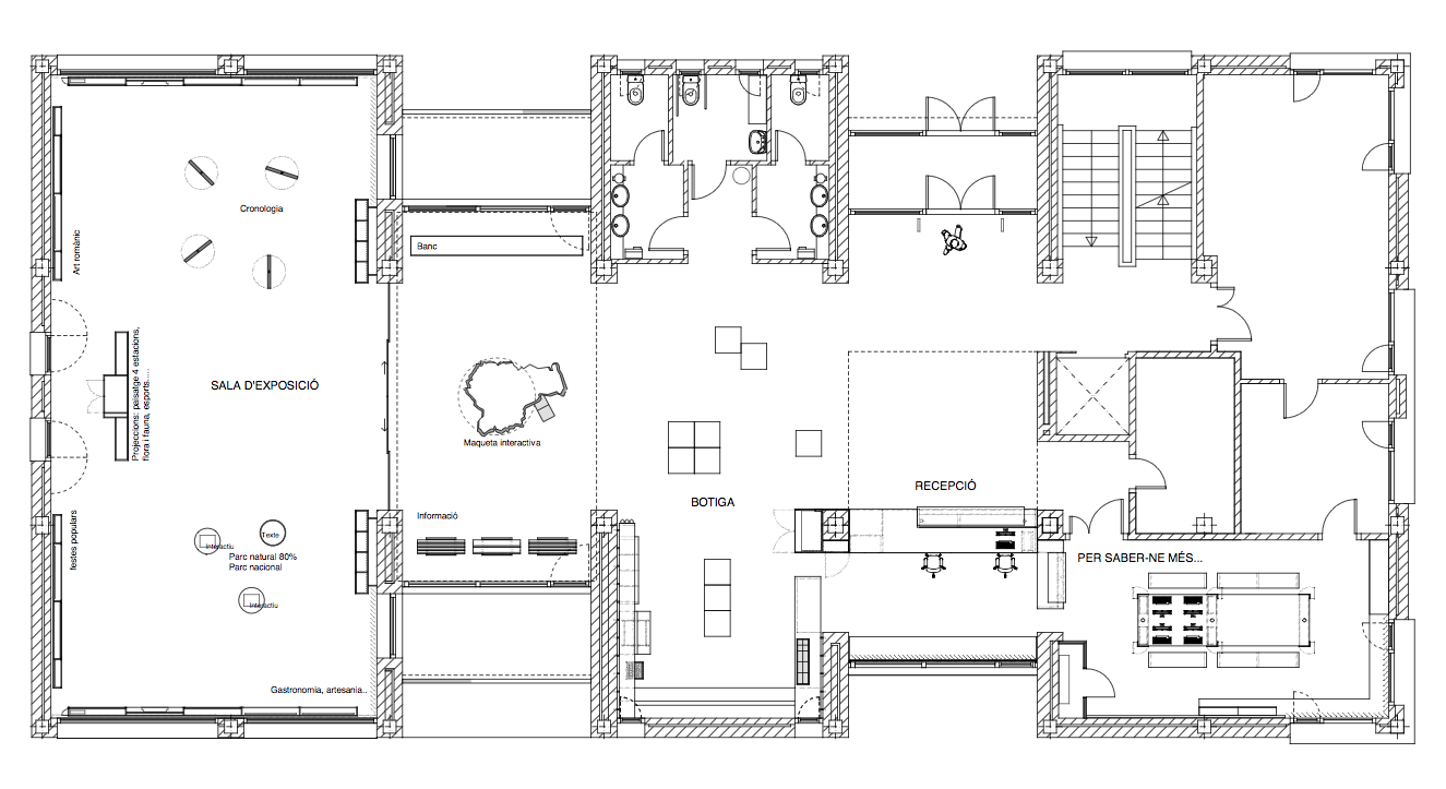
Es crea un espai d’atenció al públic, biblioteca, botiga de productes de la zona i exposició permanent “Els Camins del Pallars”.
Client · Consell Comarcal del Pallars Sobirà.
Localització · Sort – Lleida.
Es crea un espai d’atenció al públic, biblioteca, botiga de productes de la zona i exposició permanent “Els Camins del Pallars”.