M · 606 427 023 info@lidiaantunez.com
Select Page

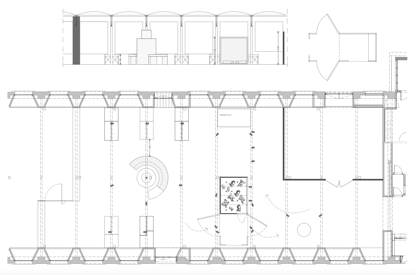
Àrea de reserva visitable – MUSEU de Mataró. CAN MARfÀ. gènere de punt

Client · Ajuntament de Mataró.
Localització
· Mataró – Barcelona.

Fotografia: Teresa Llordes

La segona planta del Museu acull l’àrea de col·leccions d’indumentària, instruments científics i maquinària de petita i mitjana dimensió.

Hi ha un espai  tècnic de treball  i una zona de reserva i magatzem. Una part d’aquest espai és visitable i esdevé una prolongació de l’espai expositiu de la primera planta. Hem dissenyat una estanteria separadora d’unes dimensions espectaculars.

 

Comparteix aquest projecte: